19 Tareeda Way, Nimbin
Large Corner Block - Great Investment Opportunity



















Description
Set on a generous 1,706sqm corner block, this elevated parcel of land offers sweeping views of the Nightcap Ranges, Lillian Rock, and the iconic Nimbin Rocks. Fully serviced and ideally positioned within walking distance of Nimbin village, you’ll enjoy easy access to the local pool, skate park, Bowling Club, and more—making it a perfect location for families and all age groups.
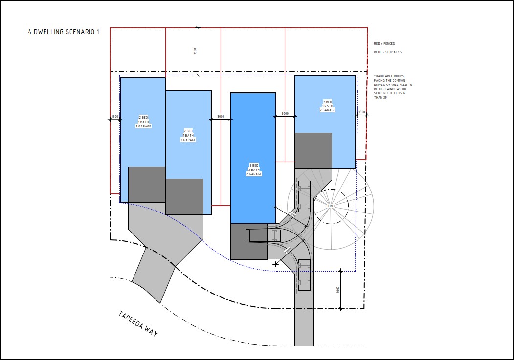
Level and spacious, the block presents a range of building possibilities. Zoned RU5 Village, it has potential for development of up to four dwellings (STCA), offering a fantastic opportunity for investors or those looking to create a multi-home lifestyle. Concept plans are available in the photos.
Nimbin is a vibrant, flood-free community with a strong focus on sustainability, creativity, and connection. With regular farmers markets, live music, art exhibitions, workshops, and a variety of local cafes and independent shops, there’s always something happening in this welcoming village.
Whether you're looking to invest, develop, or build your dream home with room to grow, this property offers outstanding potential.
Contact Jacqui on 0439 15 6666 to book your inspection today.



















Your email address will not be published. Required fields are marked *